Lumina Serisi

Lumina Serisi

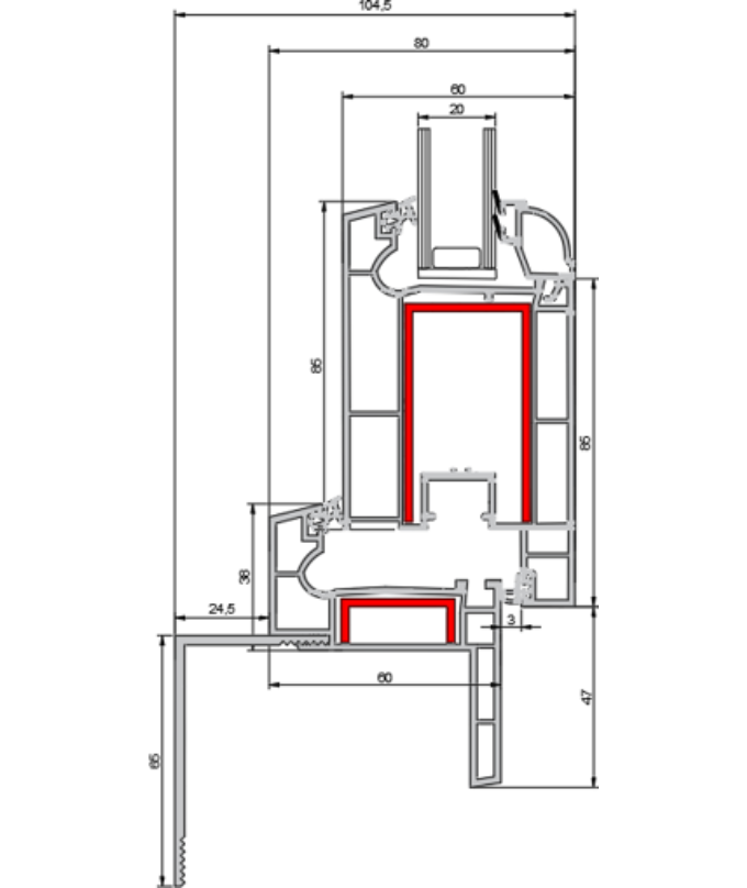
  • Eğimi sayesinde maksimum su tahliyesi sağlar.
  • Tek tırnaklı dekoratif cam çıtaları ile kolay montaj ve estetik görünüm sağlar.
  • 4-30 mm. cam boşluğu mevcuttur.
  • Kanat ve kasada menteşe vidaları ile destek saçlı montaj
  • 4 odacıklı profil dizaynı ile yüksek ses ve ısı izalasyonu sağlar
  • TPU contalı profiller ile işçilik ve zamandan tasarruf sağlar.
  • 60 mm kasa genişliği ile Karya serisi ile birlikte kullanılma imkanı sağlar.
Sorularınız için bizi arayın

0 554 951 65 36